THE AZALEA
2026年2月完成★駅まで徒歩2分です★ ロフト付きのお住まい★
登録日/2025年10月16日 更新日/2026年03月07日
お問い合わせ番号/ 20501c
貸家
賃料17.0万円
京都府長岡京市天神1丁目1-24- 敷金/礼金
- 敷金なし / 礼金なし
- 管理費/共益費
- 0円 / 0円
- 築年月
- 2026年02月 / 築0年
- 最寄駅
-
- 阪急電鉄京都線
- 長岡天神駅徒歩2分
- 東海道本線
- 長岡京駅徒歩14分
- 阪急電鉄京都線
- 西山天王山駅徒歩21分
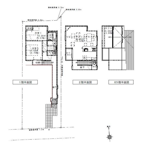
- 間取り
-
- 間取り
- 2LDK
- 専有面積
- 86.69m2
- 階数/住階
- 2階 / -
新賃料敷礼ゼロ即入可
この物件の主な特徴
利用可能沿線 2沿線利用可 利用可能駅 2駅利用可 駅徒歩 駅徒歩5分以内 駅まで平坦 築年 築2年以内 未入居 駐輪場 バルコニー バルコニー有 LDK広さ 18帖以上 全居室洋室 ロフト 2階LDK 2階リビング システムキッチン カウンターキッチン ガス 都市ガス IHクッキングヒーター コンロ口数 三口 大型給湯機 洗面所 洗面所独立 洗面台 独立洗面台 シャンプードレッサー 洗面所にドア バストイレ 別 バス 専用 追い焚き シャワー 浴室乾燥機 トイレ 専用 温水洗浄便座 トイレ数 2ヶ所 エアコン 有 24時間換気システム フローリング 室内洗濯機置場 上水道 公営 汚水 下水道 収納 CATV TVインターホン インターネット対応済 光ファイバー 二人入居可否 可 子供入居 可 敷金・礼金不要 礼金 不要 敷金 不要 ※設備名をクリックで対象の設備の物件一覧を絞り込み- 保証金
- 更新料
- バルコニー面積
- -
- ペット備考
- -
- リフォーム
- - -
- 学校区
-
- 小学校区
- 長岡第六小学校 距離:507m
- 中学校区
- 長岡中学校 距離:653m
- 部屋向き
- 西
- 借地権種類
- バイク置き場
-
- -
- 料金
- -
- 空き戸数/総戸数
- -/-
- 取引態様
- 一般
- 備考
- ・保証会社加入要
・A棟が奥側、B棟が手前側です
- 敷引
- 保険料
- 24,000円
- 室内清掃費
- 鍵交換費
- ベランダ面積
- -
- テラス面積
- -
- 部屋番号:棟番号
- A
- リノベーション
-
- -:-
- -
- 建物構造
- 木造
- 駐車場
-
- 近隣有
- 駐車場料金
- 11000円
- 駐車場空き台数
- -
- 近隣駐車場距離
- 30.00m
- 駐輪場
-
- -
- 料金
- -
- 現況
- 空き
- 引渡時期
-
- 即引渡し可
- ---
- 借家契約
-
- 普通借家権
- 契約期間
- 2年
- 法令に基づくその他
制限事項 - -
公益社団法人京都宅地建物取引業協会会員
公益社団法人乙訓青年会議所特別会員OB
長岡京市商工会会員
NPO法人京都くらし方研究会正会員
長岡天満宮青年会会員 副会長
公益社団法人乙訓青年会議所特別会員OB
長岡京市商工会会員
NPO法人京都くらし方研究会正会員
長岡天満宮青年会会員 副会長












































