SU・BA・CO東向日
東向日駅徒歩4分の立地に新築テナントビルが完成! スーパーやドラッグストアが近く人通りも多いエリアですよ。
登録日/2023年10月28日 更新日/2025年12月12日
お問い合わせ番号/ 19411c
店舗(建物一部)
賃料49.5万円
京都府向日市寺戸町初田20-2- 敷金/礼金
- 0 / 礼金なし
- 管理費/共益費
- 0円 / 11,000円
- 築年月
- 2024年09月 / 築1年
- 最寄駅
-
- 阪急電鉄京都線
- 東向日駅徒歩4分
- 東海道本線
- 向日町駅徒歩10分
- 阪急電鉄京都線
- 西向日駅徒歩19分
- 間取り
-
- 間取り
- -
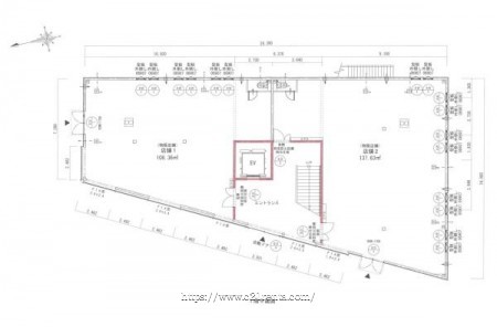
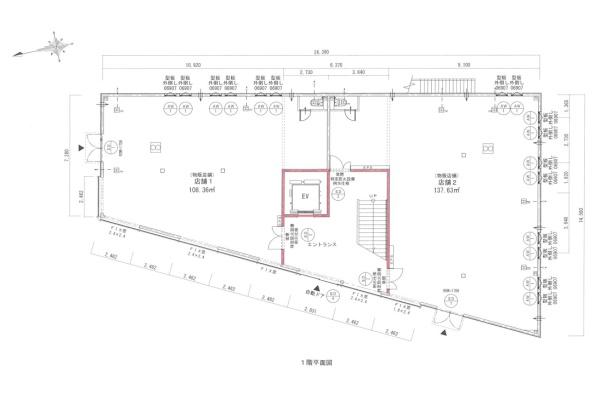
- 専有面積
- 137.63m2
- 階数/住階
- 3階 / 1階
新賃料
この物件の主な特徴
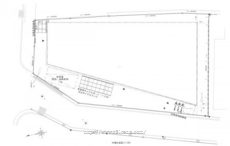
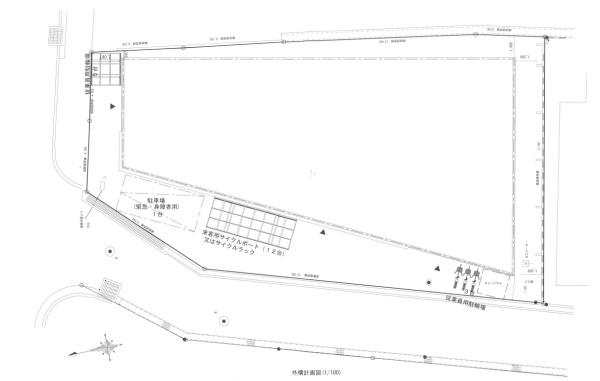
利用可能沿線 2沿線利用可 利用可能駅 2駅利用可 駅徒歩 駅徒歩5分以内 駅まで平坦 フロアあたり住戸数 1フロア2住戸 角部屋 築年 築2年以内 未入居 エレベーター 有 駐輪場 トイレ 専用 ※設備名をクリックで対象の設備の物件一覧を絞り込み- 保証金
- 6ヶ月
- 更新料
- バルコニー面積
- -
- ペット備考
- -
- リフォーム
- - -
- 学校区
-
- 小学校区
- 第六向陽小学校 距離:1457m
- 中学校区
- 西ノ岡中学校 距離:2117m
- 部屋向き
- -
- 借地権種類
- バイク置き場
-
- -
- 料金
- -
- 空き戸数/総戸数
- -/6戸
- 取引態様
- 一般
- 備考
- ・01号室は建物北側、02号室は建物南側の区画です
・保証会社加入要
・保証金返還率は契約期間によって変わります
・別途セコム使用料要
・再契約手数料100000円税込要
- 敷引
- 保険料
- 室内清掃費
- 鍵交換費
- ベランダ面積
- -
- テラス面積
- -
- 部屋番号:棟番号
- 棟番号部屋番号非公開
- リノベーション
-
- -:-
- -
- 建物構造
- 木造
- 駐車場
-
- 無
- 駐車場料金
- -
- 駐車場空き台数
- -
- 近隣駐車場距離
- -
- 駐輪場
-
- -
- 料金
- -
- 現況
- 空き
- 引渡時期
-
- 相談
- ---
- 借家契約
-
- 定期借家権
- 契約期間
- 5年
- 法令に基づくその他
制限事項 - -
公益社団法人京都宅地建物取引業協会会員
公益社団法人乙訓青年会議所特別会員OB
長岡京市商工会会員
NPO法人京都くらし方研究会正会員
長岡天満宮青年会会員 副会長
公益社団法人乙訓青年会議所特別会員OB
長岡京市商工会会員
NPO法人京都くらし方研究会正会員
長岡天満宮青年会会員 副会長




































