岩城貸倉庫
JR長岡京駅徒歩7分★ 2階建て貸倉庫です★
登録日/2022年04月10日 更新日/2026年05月16日
お問い合わせ番号/ 18364c
倉庫
賃料11.0万円
京都府長岡京市神足屋敷38-1- 敷金/礼金
- 0 / 礼金なし
- 管理費/共益費
- 0円 / 0円
- 築年月
- 1971年02月 / 築55年
- 最寄駅
-
- 東海道本線
- 長岡京駅徒歩7分
- 阪急電鉄京都線
- 長岡天神駅徒歩19分
- 阪急電鉄京都線
- 西向日駅徒歩28分
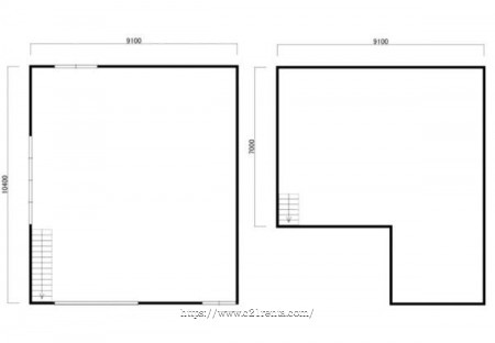
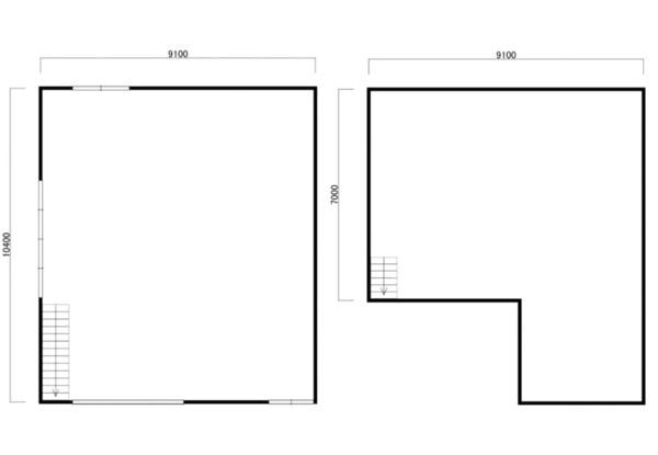
- 間取り
-
- 間取り
- -
- 専有面積
- 158.34m2
- 階数/住階
- 2階 / -
即入可
- 保証金
- 660,000円
- 更新料
- バルコニー面積
- -
- ペット備考
- -
- リフォーム
- - -
- 学校区
-
- 小学校区
- - 距離:-
- 中学校区
- - 距離:-
- 部屋向き
- -
- 借地権種類
- バイク置き場
-
- -
- 料金
- -
- 空き戸数/総戸数
- -/-
- 取引態様
- 一般
- 備考
- ・保証会社加入要
・定期賃貸借契約5年
- 敷引
- 保険料
- 室内清掃費
- 鍵交換費
- その他費用
- 水道代:2,750円
- ベランダ面積
- -
- テラス面積
- -
- 部屋番号:棟番号
- 3
- リノベーション
-
- -:-
- -
- 建物構造
- 鉄骨造
- 駐車場
-
- 無
- 駐車場料金
- -
- 駐車場空き台数
- -
- 近隣駐車場距離
- -
- 駐輪場
-
- -
- 料金
- -
- 現況
- 空き
- 引渡時期
-
- 即引渡し可
- ---
- 借家契約
-
- 定期借家権
- 契約期間
- 5年
- 法令に基づくその他
制限事項 - -
公益社団法人京都宅地建物取引業協会会員
公益社団法人乙訓青年会議所特別会員OB
長岡京市商工会会員
NPO法人京都くらし方研究会正会員
長岡天満宮青年会会員 副会長
公益社団法人乙訓青年会議所特別会員OB
長岡京市商工会会員
NPO法人京都くらし方研究会正会員
長岡天満宮青年会会員 副会長


















