店舗 久我森の宮町14-4
バス停下久我まで徒歩3分★ トイレ・自動ドア有★
登録日/2019年10月03日 更新日/2026年05月02日
お問い合わせ番号/ 15778c
店舗(一戸建)
賃料38.5万円
京都府京都市伏見区久我森の宮町14-4- 敷金/礼金
- 2,500,000円 / 1ヶ月
- 管理費/共益費
- 0円 / 0円
- 築年月
- 2020年02月 / 築6年
- 最寄駅
-
- 阪急電鉄京都線
- 西向日駅徒歩35分
- 東海道本線
- 向日町駅徒歩45分
- 東海道本線
- 長岡京駅徒歩46分
- 間取り
-
- 間取り
- -
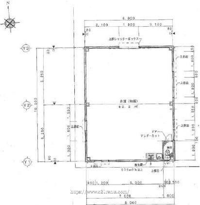
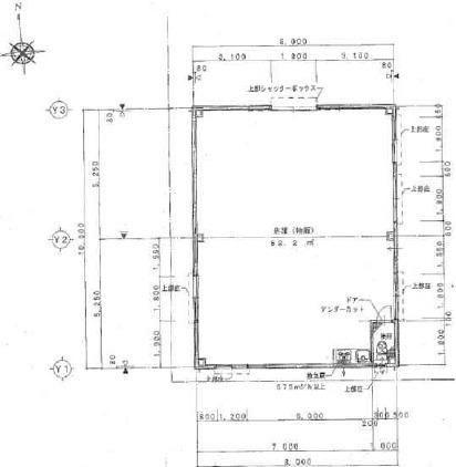
- 専有面積
- 84.00m2
- 階数/住階
- 1階 / -
即入可
- 保証金
- 更新料
- バルコニー面積
- -
- ペット備考
- -
- リフォーム
- - -
- 学校区
-
- 小学校区
- - 距離:-
- 中学校区
- - 距離:-
- 部屋向き
- -
- 借地権種類
- バイク置き場
-
- -
- 料金
- -
- 空き戸数/総戸数
- -/-
- 取引態様
- 一般
- 備考
- ・保証会社加入要
・スケルトンにて引き渡し
- 敷引
- 保険料
- 室内清掃費
- 鍵交換費
- ベランダ面積
- -
- テラス面積
- -
- 部屋番号:棟番号
- 棟番号部屋番号非公開
- リノベーション
-
- -:-
- -
- 建物構造
- 鉄骨造
- 駐車場
-
- 有り無料
- 駐車場料金
- -
- 駐車場空き台数
- 3台
- 近隣駐車場距離
- -
- 駐輪場
-
- -
- 料金
- -
- 現況
- 空き
- 引渡時期
-
- 即引渡し可
- ---
- 借家契約
-
- -
- 契約期間
- 5年
- 法令に基づくその他
制限事項 - -
公益社団法人京都宅地建物取引業協会会員
公益社団法人乙訓青年会議所特別会員OB
長岡京市商工会会員
NPO法人京都くらし方研究会正会員
長岡天満宮青年会会員 副会長
公益社団法人乙訓青年会議所特別会員OB
長岡京市商工会会員
NPO法人京都くらし方研究会正会員
長岡天満宮青年会会員 副会長















