ヨヘイビルディング
アゼリア通り沿いのテナントです★
登録日/2009年07月01日 更新日/2026年04月24日
お問い合わせ番号/ 3991c
店舗(建物一部)
賃料33.0万円
京都府長岡京市開田2丁目1-4- 敷金/礼金
- 0 / 4ヶ月
- 管理費/共益費
- 0円 / 33,000円
- 築年月
- 1983年11月 / 築42年
- 最寄駅
-
- 阪急電鉄京都線
- 長岡天神駅徒歩6分
- 東海道本線
- 長岡京駅徒歩9分
- 阪急電鉄京都線
- 西向日駅徒歩25分
- 間取り
-
- 間取り
- -
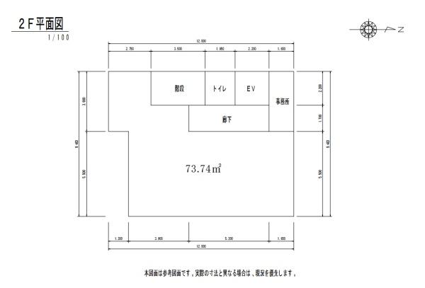
- 専有面積
- 75.00m2
- 階数/住階
- 4階 / 2階
即入可
この物件の主な特徴
利用可能沿線 2沿線利用可 利用可能駅 2駅利用可 駅徒歩 駅徒歩5分以内 エレベーター 有 トイレ 専用 上水道 公営 入居可能時期 即入居可 ※設備名をクリックで対象の設備の物件一覧を絞り込み- 保証金
- 2ヶ月
- 更新料
- 1ヶ月
- バルコニー面積
- -
- ペット備考
- -
- リフォーム
- - -
- 学校区
-
- 小学校区
- - 距離:-
- 中学校区
- - 距離:-
- 部屋向き
- -
- 借地権種類
- バイク置き場
-
- -
- 料金
- -
- 空き戸数/総戸数
- -/4戸
- 取引態様
- 一般
- 備考
- 火災保険加入要
- 敷引
- 保険料
- 室内清掃費
- 鍵交換費
- ベランダ面積
- -
- テラス面積
- -
- 部屋番号:棟番号
- 2F
- リノベーション
-
- -:-
- -
- 建物構造
- 鉄骨造
- 駐車場
-
- 無
- 駐車場料金
- -
- 駐車場空き台数
- -
- 近隣駐車場距離
- -
- 駐輪場
-
- -
- 料金
- -
- 現況
- 空き
- 引渡時期
-
- 即引渡し可
- ---
- 借家契約
-
- 普通借家権
- 契約期間
- 2年
- 法令に基づくその他
制限事項 - -
公益社団法人京都宅地建物取引業協会会員
公益社団法人乙訓青年会議所特別会員OB
長岡京市商工会会員
NPO法人京都くらし方研究会正会員
長岡天満宮青年会会員 副会長
公益社団法人乙訓青年会議所特別会員OB
長岡京市商工会会員
NPO法人京都くらし方研究会正会員
長岡天満宮青年会会員 副会長




































